Archive Record
Images
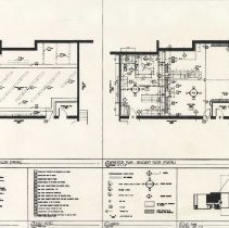
Additional Images [5]
Metadata
Object ID |
1000.141.01 |
Title |
Chevy Chase Historical Society: Past, Present and Future exhibit |
Object Name |
Exhibit |
Creator |
Unknown |
Description |
Chevy Chase Historical Society: Past, Present and Future exhibit Fundraising exhibit For more than twenty years the Chevy Chase Historical Society has stored its ever-increasing collections of books, maps, files, oral histories, photographs and negatives, framed pictures, exhibits and office equipment in the homes of at least eight of our members. Our collection, therefore, has been widely dispersed and accessible only by appointment. We are renovating a room in the lower level of the Chevy Chase Community Library to create a new Chevy Chase Historical Society headquarters: a secure, climate-controlled room housing our collection in compliance with archival standards and a staffed office open to the public pursuant to a published schedule. A second room in the space is being renovated for the Library's use, in accordance with its plans. [2008.136.08] Chevy Chase Historical Society files in the attic of 101 East Kirke Street, Chevy Chase, MD [2008.136.04] CCHS Chevy Chase Historical Society collections in the attic of 101 East Kirke Street, Chevy Chase, MD. From left to right: photocopy machine, artifacts, drawers for mounted exhibits, boxes of photographs, files of papers. [2008.136.03] Chevy Chase Historical Society collections in the attic of 101 East Kirke Street. [2008.136.09] Chevy Chase Historical Society collections in the attic of 101 East Kirke Street, Chevy Chase, MD. [2008.136.06] Chevy Chase Historical Society collections in the attic of 101 East Kirke Street, Chevy Chase, MD. In center: Maps, boxes of oral histories, reference books [2008.136.01] Chevy Chase Library book sorting and storage room, emptied for renovations South east corner of basement 8005 Connecticut Avenue, Chevy Chase, MD. Presently Chevy Chase Historical Society headquarters, before renovations [2008.136.11] Chevy Chase Library book sorting and storage room, emptied for renovation. Located in the south east corner of basement, 8005 Connecticut Avenue, Chevy Chase, MD. Presently headquarters for Chevy Chase Historical Society. [2008.136.02] Chevy Chase Library book sorting and storage room, South east corner of basement. 8005 Connecticut Avenue, Chevy Chase, MD. Presently the headquarters of the Chevy Chase Historical Society, before renovations. [2008.136.10] Chevy Chase library book sorting and storage room, emptied for renovation. South east corner of basement. 8005 Connecticut Avenue, Chevy Chase, MD. Presently headquarters of Chevy Chase Historical Society. [1000.141.02] Architectural plan showing the demolition and partition details for the creation of the Chevy Chase Historical Society headquarters in the basement of the Chevy Chase Library. [1000.141.03] Plans for the renovation of the basement of Chevy Chase Library to accomate the new Chevy Chase Historical Society headquarters and library facilities. |